Alisio - Coolum Beach

Download E-Brochure
 
 

 Alisio - Coolum Beach
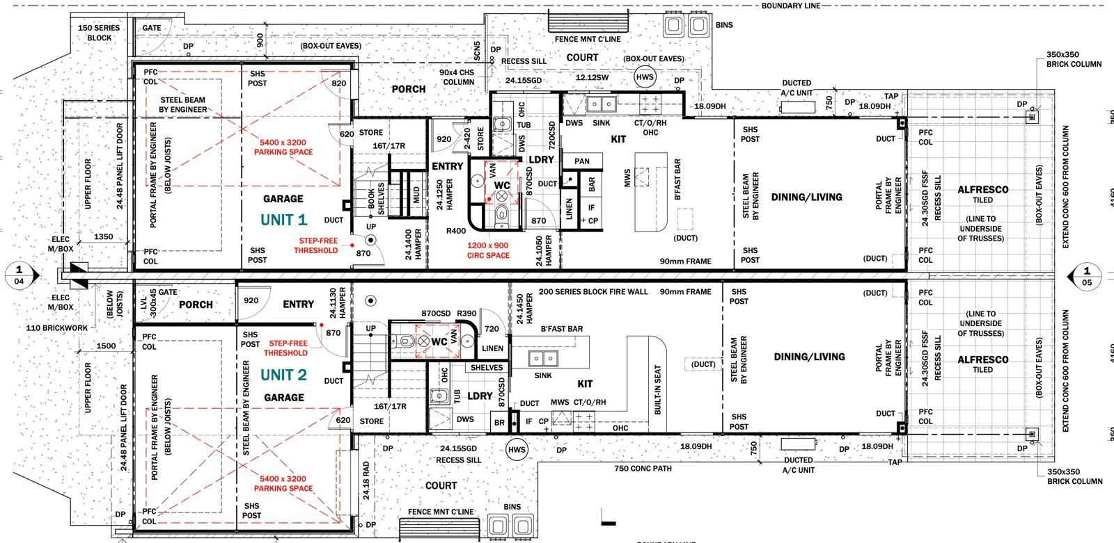
Located in one of Coolum’s most desirable pockets, 25 Tradewinds Avenue is a great opportunity to secure your slice of paradise. Currently under construction, this carefully designed residence is being shaped with a strong focus on lifestyle, our sub-tropical environment and understated coastal elegance. Just a short walk to the sand, this home is positioned to enjoy the natural surrounds, while offering privacy and modern liveability. It reflects our continued commitment to delivering well-crafted homes tailored to the Sunshine Coast lifestyle.

Contact us
 
Previous
Previous

Howard Street Residences - Paddington